Inhalt anspringen

Stadt Remscheid

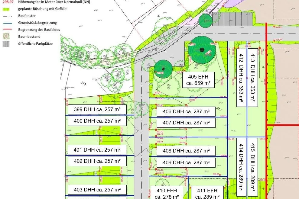
Bauen Am Schützenplatz in Lüttringhausen

In zentraler Lage, nahe dem Ortskern von Lüttringhausen, soll am Schützenplatz und an der Willi-Hartkopf-Straße ein neues Wohngebiet entstehen. Die Baugrundstücke werden durch die Stadt Remscheid im Erbbaurecht vergeben.

Die im Erbbaurecht zu vergebenen Baugrundstücke, die sich an der Straße "Am Schützenplatz" und der "Willi-Hartkopf-Straße" befinden, liegen in zentraler Lage und sind nur 2 Gehminuten vom Ortskern und dem historischen Rathaus in Lüttringhausen entfernt.

Die Umgebung ist geprägt von einer Mischung aus Handels- und Dienstleistungsnutzungen, sowie Wohnungsbau. In unmittelbarer Nähe befinden sich Lebensmittel- und Einzelhandelsgeschäfte, Drogeriemärkte, diverse Gastronomiebetriebe, eine weiterführende Schule, Grundschulen, Kindergärten, ein Jugendzentrum sowie Sport- und Spielplätze.

Die nächstgelegene Bushaltestelle ist ca. 300 m entfernt und bietet z. B. Anbindungen nach Lennep, in die Remscheider Innenstadt und nach Wuppertal. Der S-Bahnhof Lüttringhausen mit Verbindungen nach Wuppertal, Solingen und Düsseldorf ist ca. 1,1 km entfernt. Die Auffahrten der Autobahn A1 Remscheid-Lennep und Wuppertal-Ronsdorf sind beide mit dem Auto in etwa 5 Minuten erreichbar.

Linkliste

Erläuterungen und Hinweise

Bildnachweise

  • Stadt Remscheid
  • Stadt Remscheid
  • Stadt Remscheid
  • Stadt Remscheid
  • Stadt Remscheid
  • Stadt Remscheid
  • Stadt Remscheid
  • Stadt Remscheid
  • Stadt Remscheid

Auf remscheid.de verwenden wir ausschließlich technisch notwendige Cookies sowie das Webanalysetool Matomo zur anonymisierten statistischen Auswertung. Ihre Einwilligung können Sie jederzeit in unseren Datenschutzeinstellungen widerrufen. Weitere Informationen und Hinweise finden Sie in der Datenschutzerklärung.

Einstellungen zum Datenschutz